HIGHLY ACCURATE FLOOR PLANS, SECTIONS AND ELEVATIONS
CAN BE GENERATED IN A VARIETY OF FORMATS AND LEVELS OF DETAIL. THIS WAY WE DELIVER PRODUCTS TAILORED TO SUIT YOUR SPECIFIC REQUIREMENTS
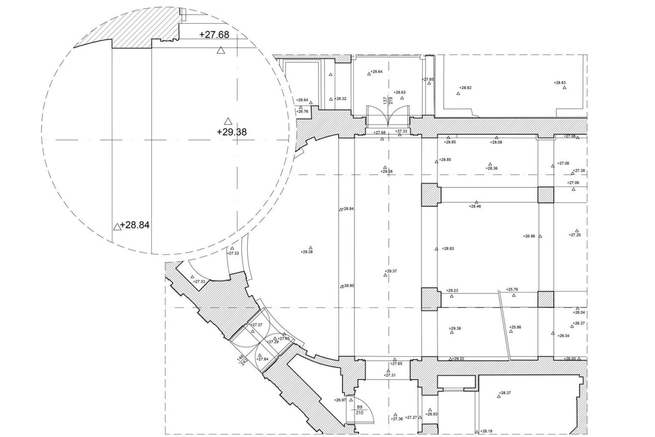
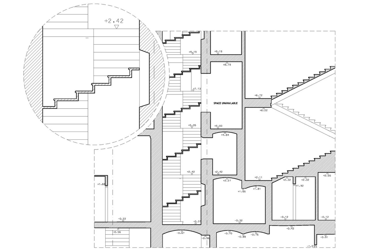
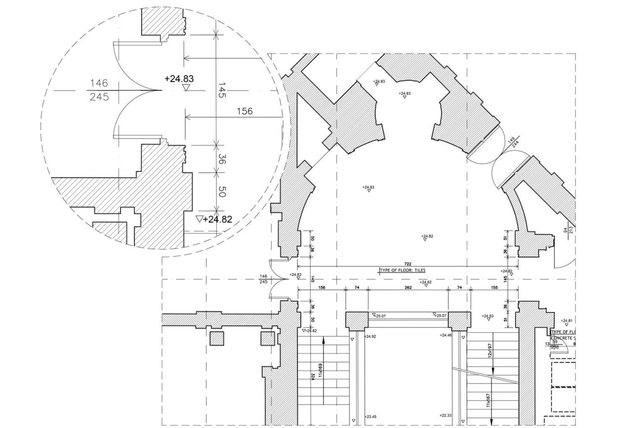
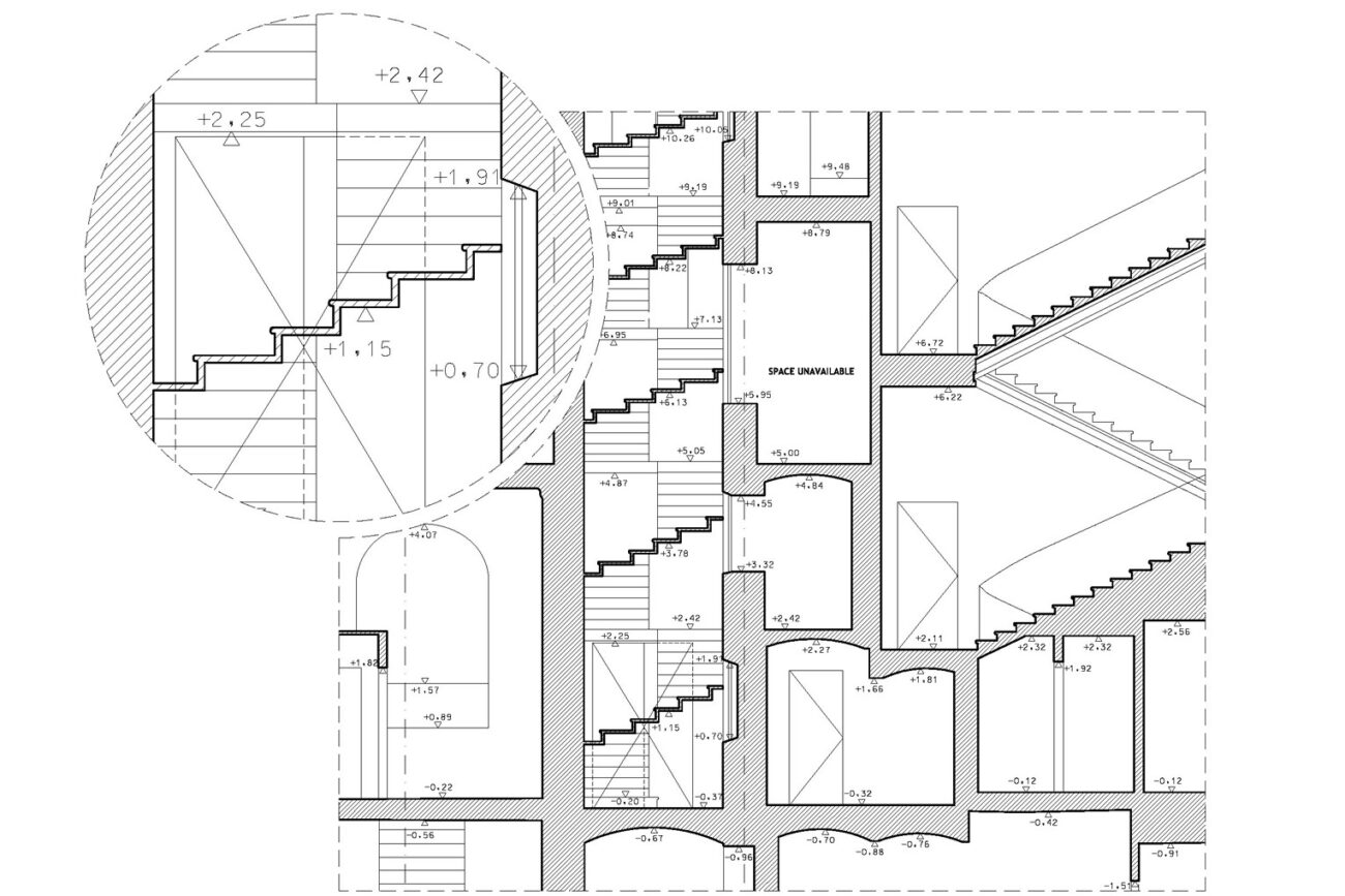
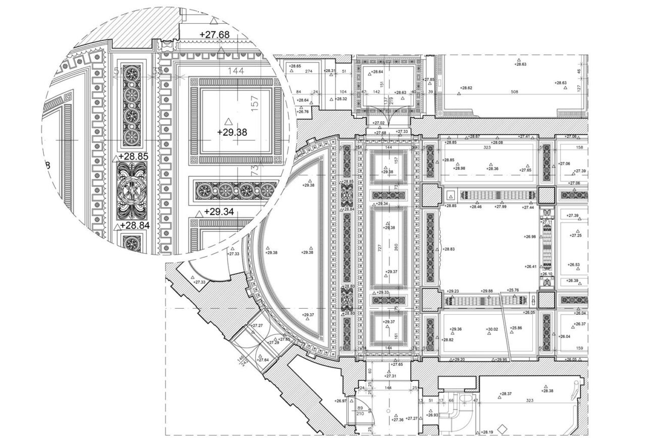
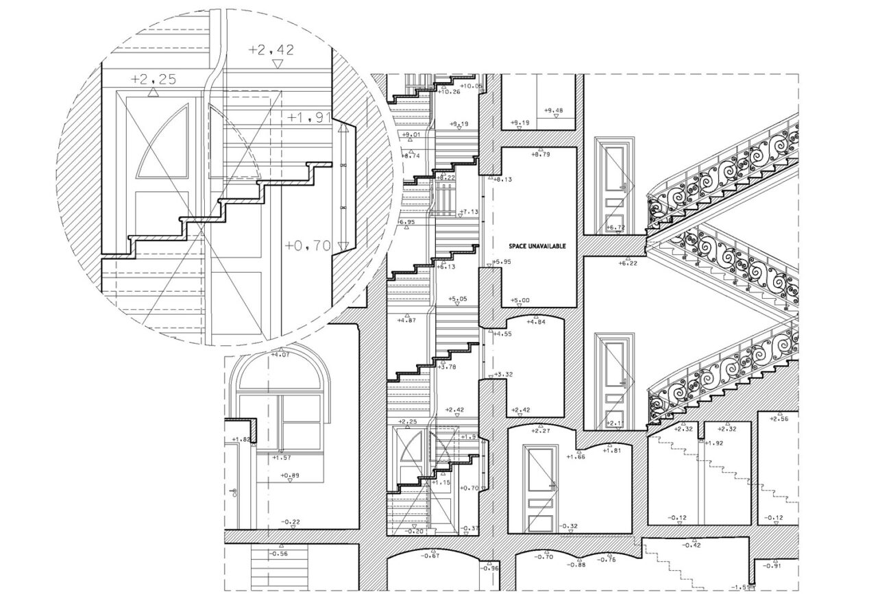
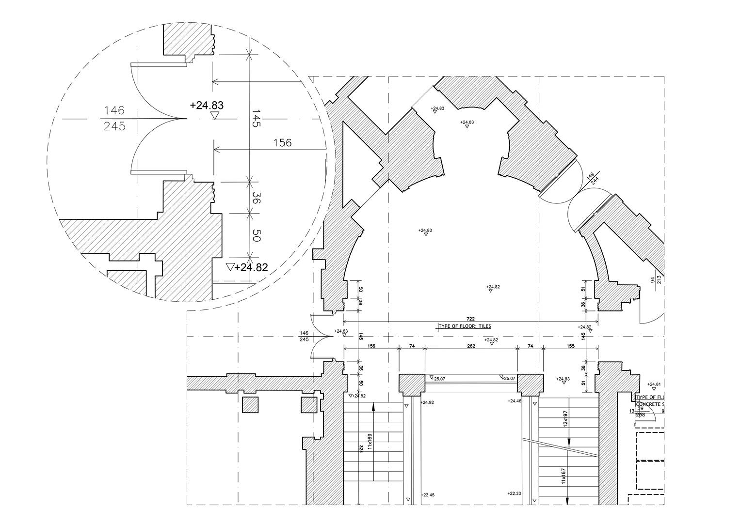
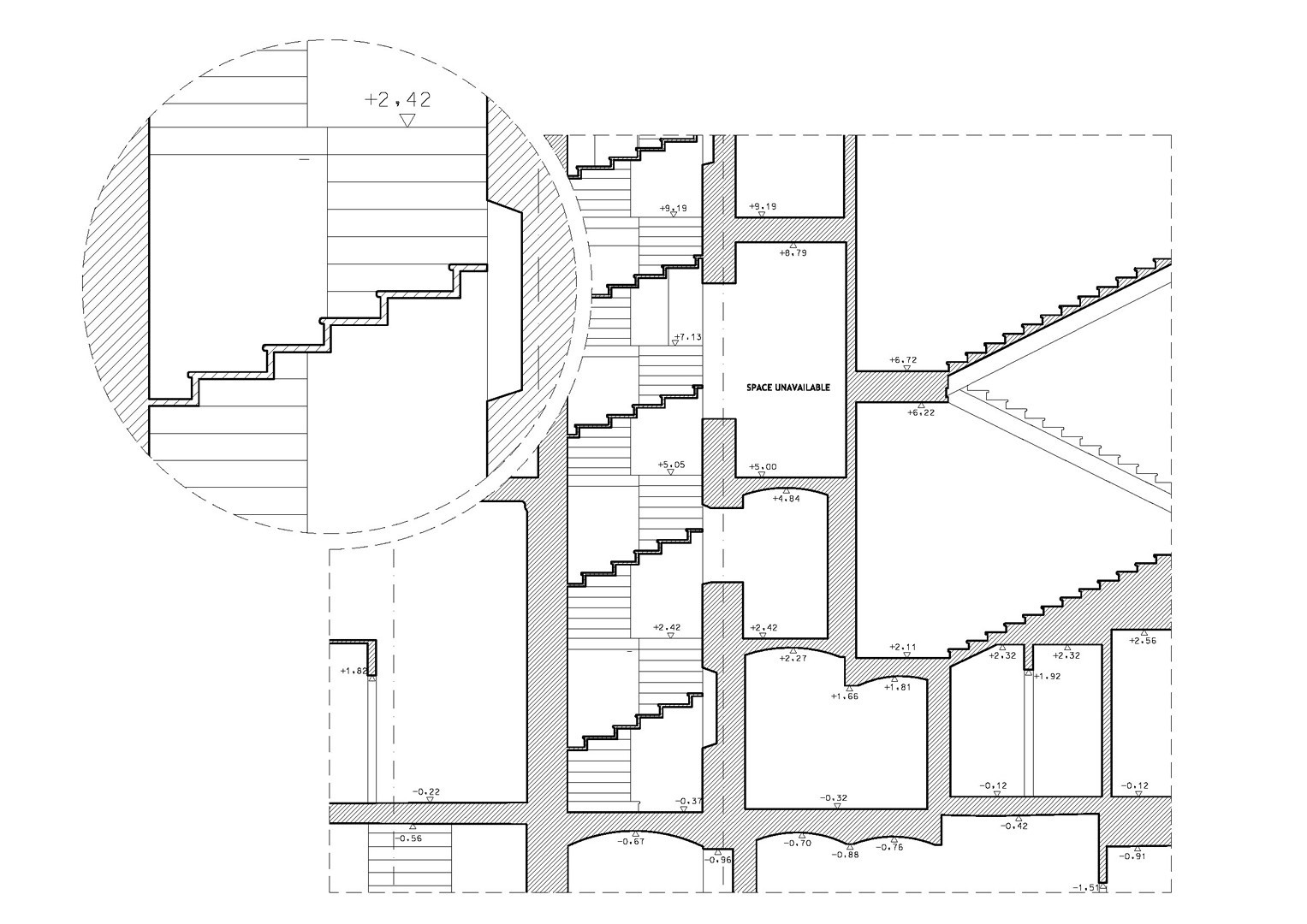
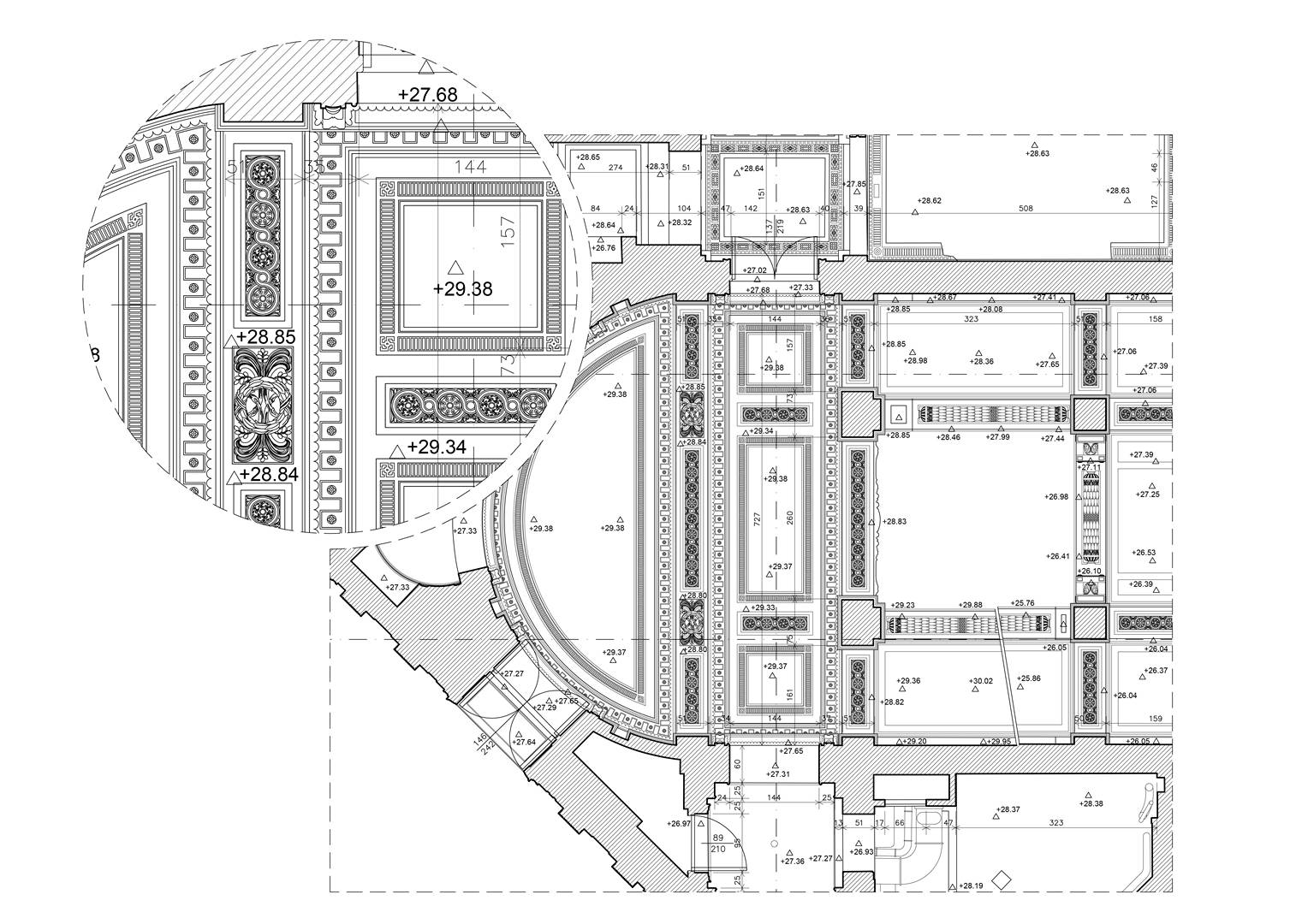
Utilising point cloud as a basis, we produce highly accurate and detailed 2D documentation. It contains precise products such as floor plans, sections and elevations views. When compared with traditional methods of survey data capture, point clouds offer a far greater flexibility in terms of data production. As with other data extraction projects, specification is all important. Time and therefore, cost savings can be achieved by understanding the level of detail and accuracy required, both today and in the future.
Specification will determine the density in the point cloud during the data collection stage, as well as the level of extraction for the final product. A little forward planning initially may save on costly and time consuming revisits to the site at a later stage. This will allow the end user to gain the maximum advantage from the use of point cloud technology. Our 2D CAD services include elevations drawings, floor plans drawings, sections and ceilings.
PRACTICAL APPLICATIONS INCLUDE:
Redevelopment of existing buildings
Streetscape elevations for planning
Heritage Recording











