LOCATION
Lviv, Ukraine
SURVEYING EQUIPMENT
scanner Z+F Imager 5006, Leica TCRA 1101 plus Total Station
TOTAL TIME SPENT
3 days on site, about 75 days processing in the office
FINAL PRODUCT
Point cloud, 2D CAD documentation, BIM model
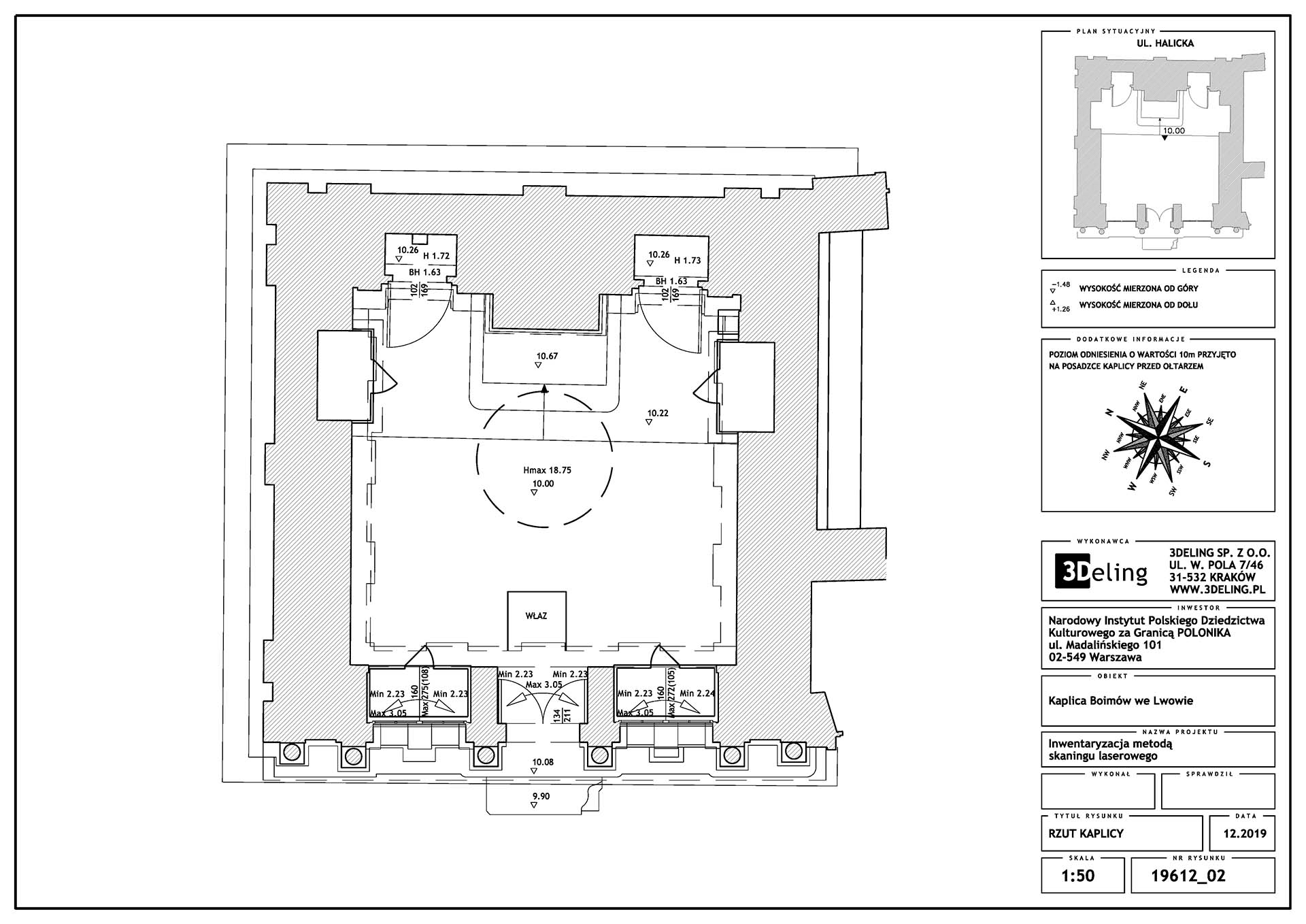
3D digitalization of the Boim Chapel
This project, commissioned by Institute Polonika and financed from public funds, aimed to conduct inventorisation of this Renaissance building. As a result we delivered 2D documentation of the Chapel, including vector drawings of all, even the smallest architectural details. We also generated high-resolution, textured (px c.a. 1 mm) high-poly mesh model.
During the survey, beside the regular laser scanning, we used drone and camera set on a pole. Additionally we mounted a special scaffolding inside the Chapel, to capture all details of its interior. This way we managed to obtain precise laser scanning and photographic data. Later on we processed those input data, which resulted in generating photogrammetric documentation of the Chapel as well as detailed 2D CAD documentation and high-poly 3D mesh model.
Categories:
























