LOCATION
London, UK
SURVEYING EQUIPMENT
Laser scanner Z+F 5010, Total Station Leica TCRA 1101+
Tripods
Other Accesoriers
TOTAL TIME SPENT
15 days on site -1500 scans (1 person) and 6 weeks in the office (5 person)
FINAL PRODUCT
Point cloud in gray scale and OS, Bim model strcutural + MEP as-built LOD4 model delivered in Auotdesk Revit for 15 floors internally, 2D documentation generated base on the 3D model
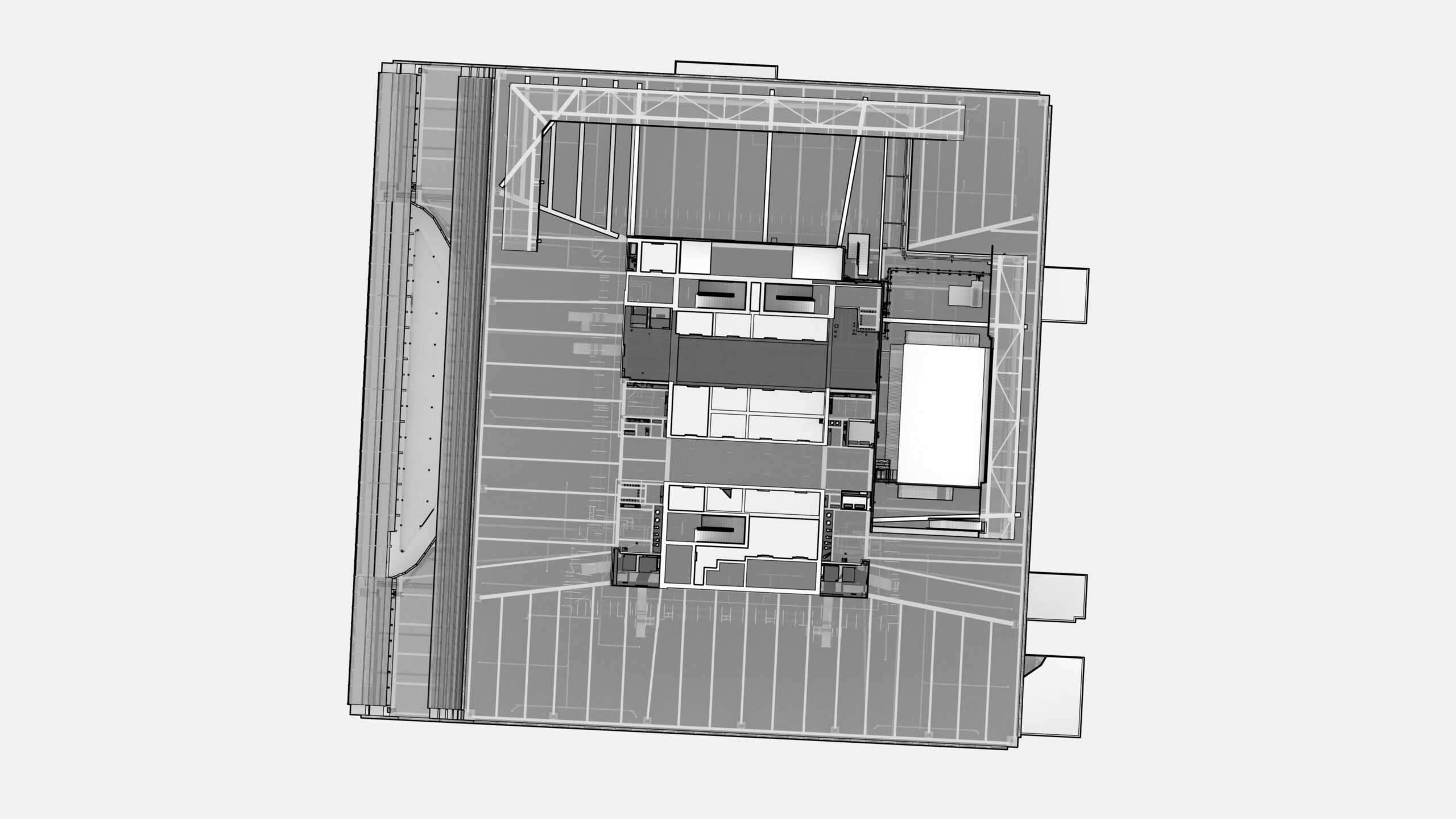
A new multi-storey office building from central London
The scope of the project included 3D laser scanning and 3D BIM modelling of a new-build office building. A client decided to as-built only 15 last floors of the building, roof and basement areas, all staircases and outside. Even with this limitation of the scope the project turn out to be quite large: we positioned about 1500 single scans, registered with support of the independent control points. The whole task was challenging mainly due to the height of the building.
We have built the BIM model with LoD 4 (level of detail) in such way so the plot plans from each floor and sections could be generated with all annotation. BIM model included all MEP services.
The video case study presented below shows all the deliverables, registered point cloud, BIM model with MEP and original plot plans.
Categories:















