LOCATION
Toruń, Poland
SURVEYING EQUIPMENT
scanner Z+F Imager 5006, Leica TCRA 1101 plus Total Station, Camera Canon 3D Mark II
TOTAL TIME SPENT
2 days on site (200 scans), about 20 days processing in the office
FINAL PRODUCT
Point cloud in intensity colours, 2D CAD drawings, Orthophotos in RGB colours, visualization
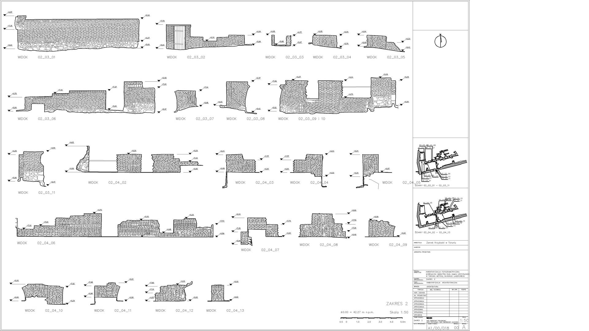
The Teutonic Castle in Torun
3Deling was commissioned to survey the 13th Century Teutonic Castle in Turon as a heritage record. In addition to scanning the building, which has largely been in ruins since 1454, the client commissioned metric images, orthophotos of individual segments of the walls in intensity colours from the point cloud.
2D elevations of the ruined walls were constructed from the dataset showing individual stones. Visualisations were also produced from the point cloud depicting the remains of the castle. The main wall from the side of the Vistula (The highest and most magnificent area) was additionally scanned in RGB colours.
Categories:




















