LOCATION
London, UK
SURVEYING EQUIPMENT
scanner ZF Imager 5010, TCRP 1201 Plus
TOTAL TIME SPENT
10 days
FINAL PRODUCT
registered point cloud, 2D CAD documentation
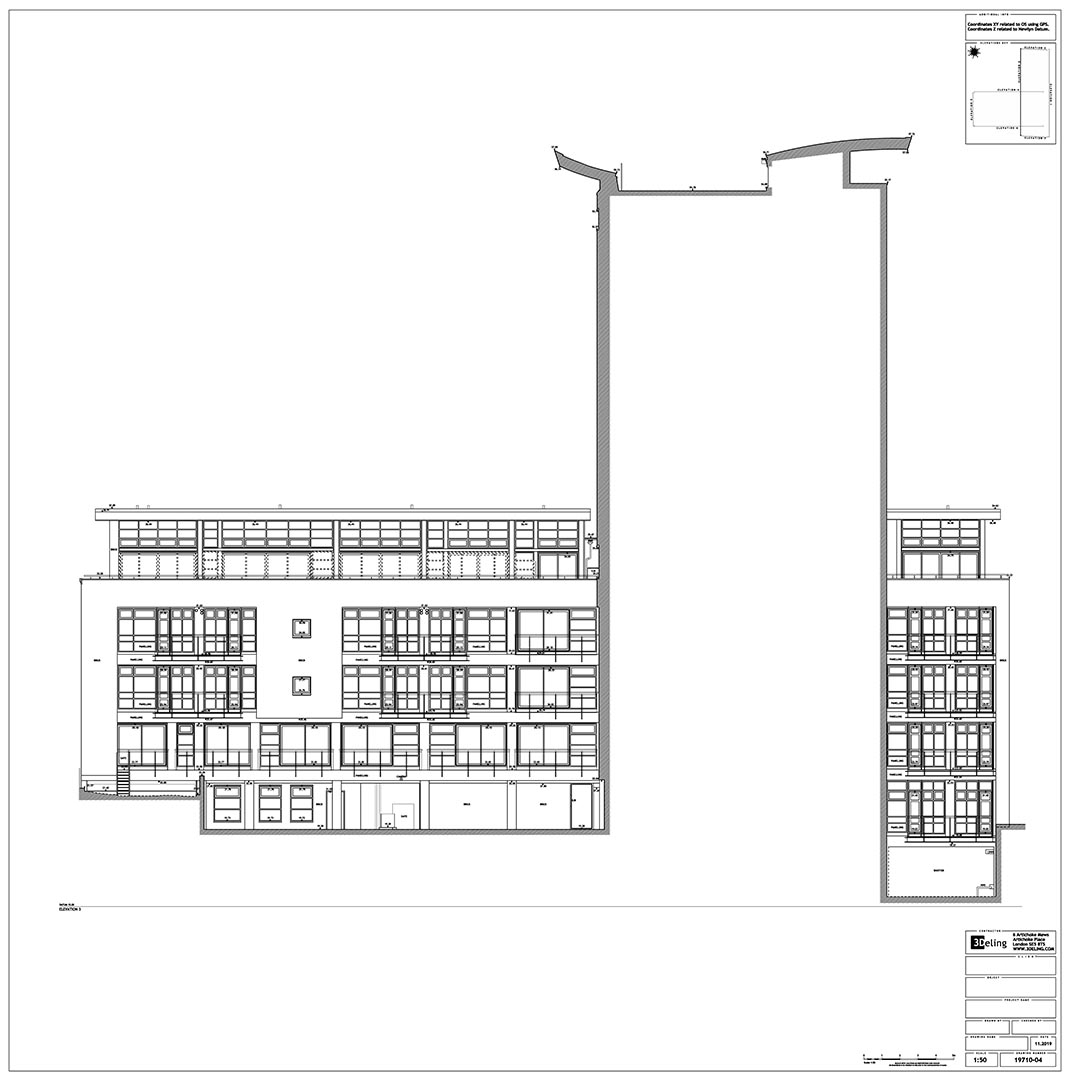
2D CAD documentation of the facades
of residential building in London
Digitalization with precise 2D CAD documentation of the facades of residential building in London.This project is another example of how 3Deling’s measured survey services use a wide range of technology, including laser scanning and drones to accurately capture a building and its features. In this case the object was the outer surfaces of an apartment block in London. Thanks to efforts of our professional engineers the scanning process was as always non-intrusive, quickly undertaken and with minimal disruption to tenants. This measured building survey data then was a base for 2D plans of the facades.
We provided a specialist consultation to prepare a scope of work that meets the project requirements and level of detail. Delivering the high LOD was important in this project, because it was ordered for planned replacement of cladding panels covering the building. The contractor specified that a laser scan survey needs to map out the building in 2D, including fenestration, structural and cladding features. Such detailed documentation was crucial for planned renovation of this object, because its project was based on prefabricated cladding panels. That is why the ordered 2D plans had to support a perfect fit of new facade components.
Categories:




















