LOCATION
Chrzanów, Poland
SURVEYING EQUIPMENT
Riegl Vz-400, Leica TCRA 1101 plus Total Station, camera Canon 5D Mark II
TOTAL TIME SPENT
3 days on site, 20 days processing in the office
FINAL PRODUCT
Registered Point Cloud, Mesh models, Orthophotos, conservation and construction expertise
Bridges and viaducts near Chrzanów
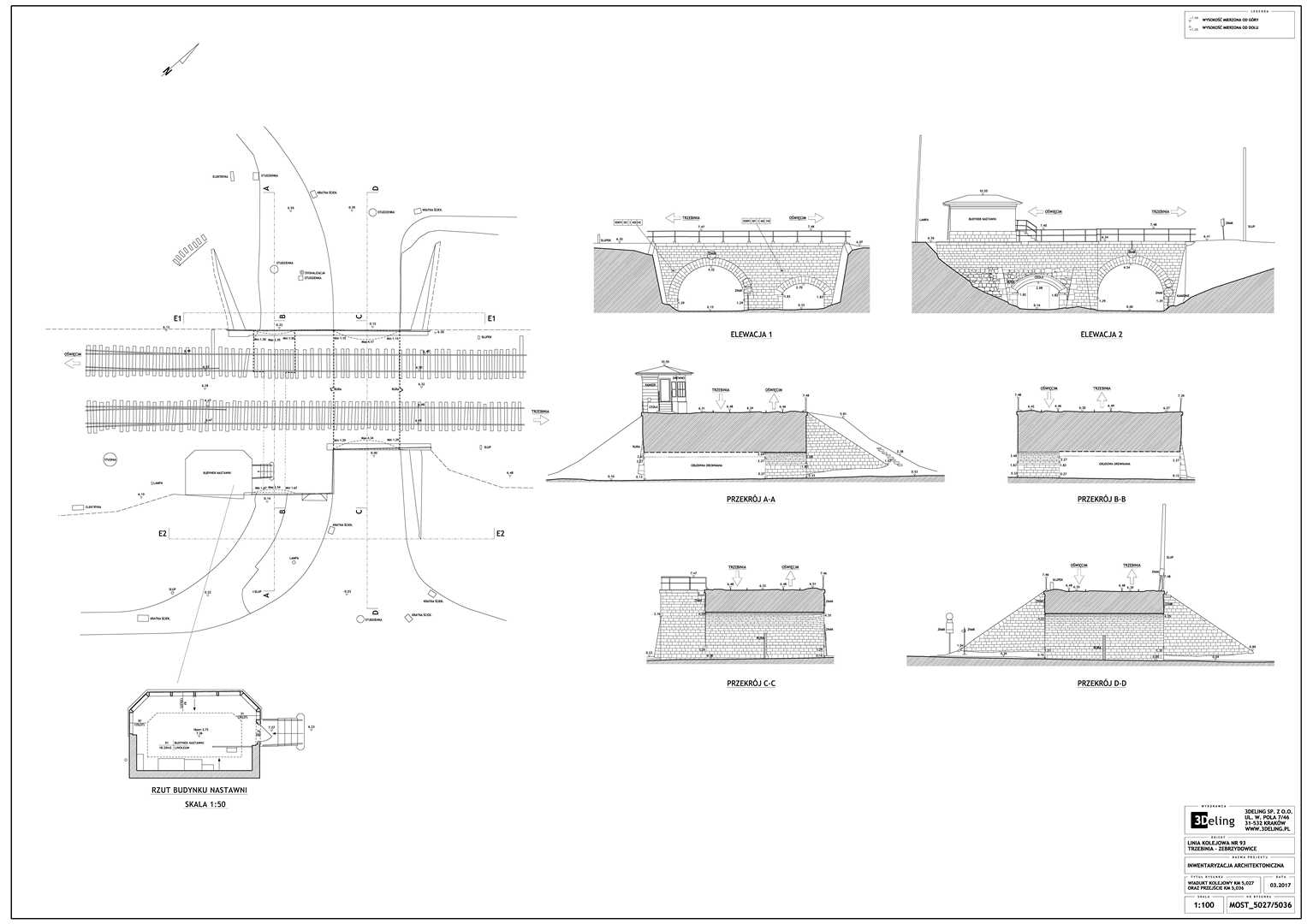
The works were commissioned by PLK as part of the modernisation of the Oświęcim-Trzebinia railway line. This order included the extensive recording of 4 bridge and viaduct structures. The objects were dating back to the original construction of the line. That is why all of our works were carried out in accordance with the strict guidelines of the conservator of monuments.
The structures were extensively scanned and photographed. As a result it enabled the generation of a mesh model combined with high-resolution textures.
Then, based on this highly detailed dataset, we produced metric / orthophotos as well as traditional 2D plans. The last obtained sections and elevations within CAD. The data produced provided the client with both as built and condition information which was then used as the basis for restoration and conservation works.
Categories:














