LOCATION
Baterpol, Poland
SURVEYING EQUIPMENT
Scanner Z+F Imager 5010C, Leica TCRA 1101 plus Total Station
TOTAL TIME SPENT
1 day on site (50 scans)
2 persons, about 3 days processing in the office
FINAL PRODUCT
Analysis of deformation and foundation
Rotary kiln model
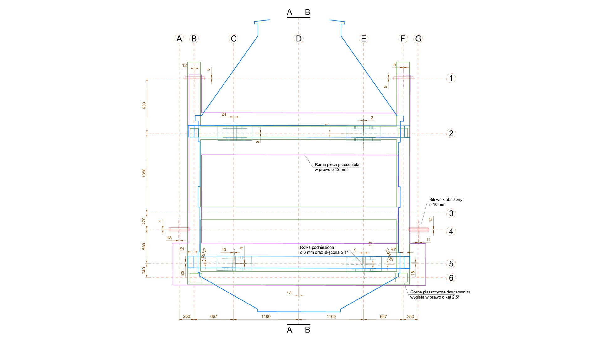
The project concerned the study on the deformation and foundation of a lead smelter. The measurements were related to the failure of the furnace positioning mechanism. The object was scanned in two states (positions) of work – heating up and outflow of liquid metal, and then it was subject to geometric analysis. We investigated the deformation of the furnace itself and the displacement of the elements that caused the furnace relocation.
The study revealed that one of the bases supporting the construction was established too low in relation to others. The report proposed a solution to the problem detected.
Categories:












